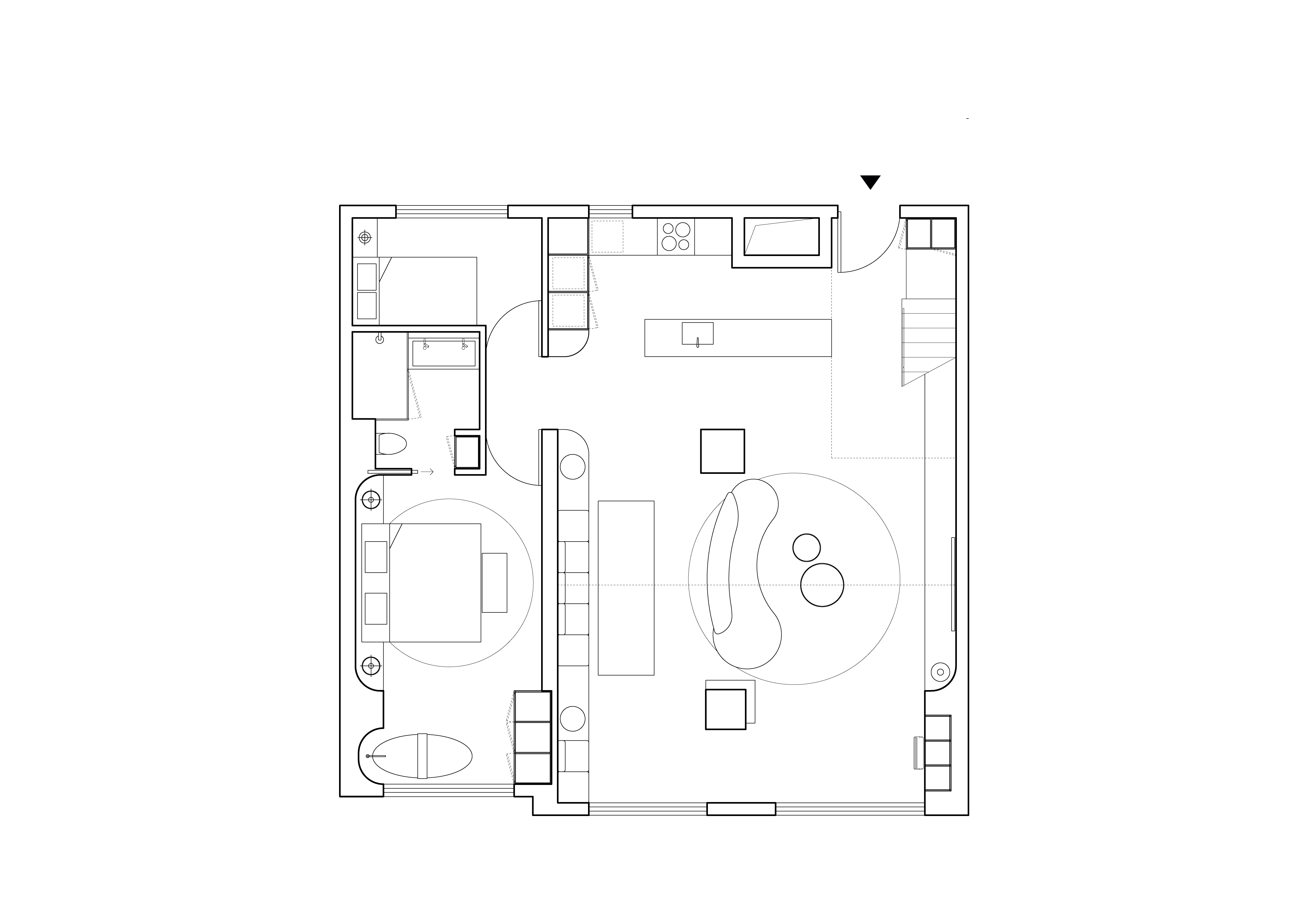
Y-Loft Interior Design

After Superimpose delivered Y-Loft city in Changzhi, their client asked them to take care of the interior design of the lofts in an adjacent development that followed the approach of Y-loft City. In line with the design of the towers, Superimpose proposed a modern-looking, open, and bright interior suitable for and focused on the Y-generation.
One of the problems of residential loft-developments is that local Chinese building codes set tight height-constraints to the lofts. Consequently, Superimpose’s main design objective was to make the best use of the low loft-space by applying smart structural strategies and by arranging spaces in such a way that the effect of beams in the living areas would be minimalized and integrated by design.
Superimpose chose to open up the mezzanine floor to create double-height voids at tactical places: a large atrium void along the main façade brings an abundance of daylight to the living and dining areas. By placing the stairs near the main entrance in an enlarged stair-void, the apartment appears spacious upon entering.
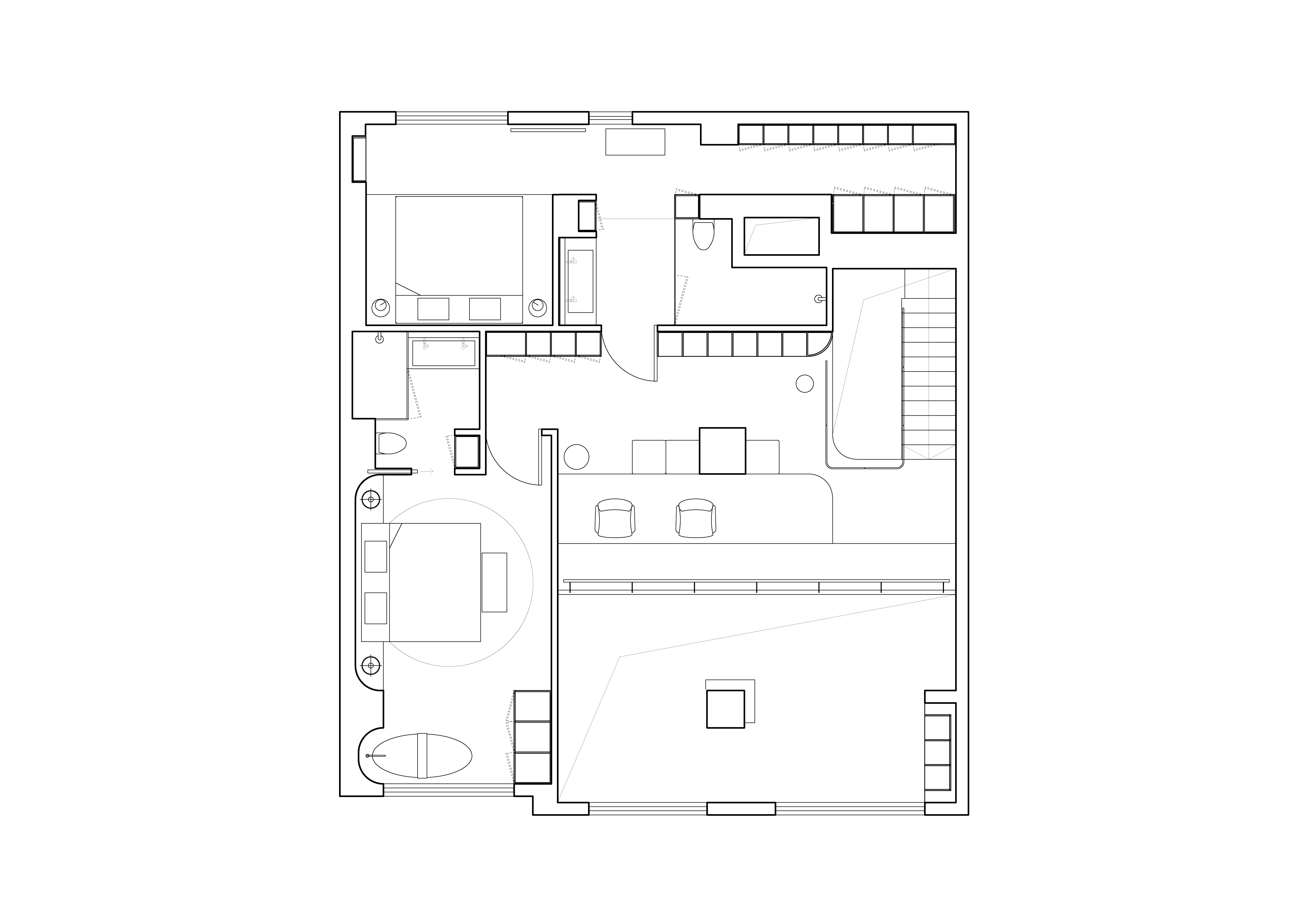
In order to make best use of the recessed second floor mezzanine along the large atrium void, the concept of a library as the showcase of the house is integrated. Typically, home-libraries and studies in China are placed in separate small rooms. The recent epidemic situation has taught us to look at these spaces for home working as a more integral part of interior design.
The appearance of the apartment is meant to be a calm and serene environment, softened by the use of light colored finishes, wood and the use of curved elements.

After Superimpose delivered Y-Loft city in Changzhi, their client asked them to take care of the interior design of the lofts in an adjacent development that followed the approach of Y-loft City. In line with the design of the towers, Superimpose proposed a modern-looking, open, and bright interior suitable for and focused on the Y-generation.















01/25
We use cookies to improve your experience. Choose which categories you want to allow. Essential cookies are required for the site to function.
Required for basic site functionality. Always on.
Anonymous usage and performance measurement.
Personalisation and third-party embeds (e.g., maps, video).