Y-Loft City

Y-Loft City:旧城,新生活
如果不复刻一线城市楼盘形态与欧式外立面风格,广阔的中国腹地能否找到自己对城市生活的新定义?叠术建筑用 80后住宅项目Y-Loft City回答了这个问题。在山西长治市的老工业区,Y-Loft City再次整合了公共空间与住宅空间,去除围墙与大门,让三座塔楼公寓成为视线汇聚的白色地标。高度落差与旋转处理打破了单调的水平、垂直重复。明亮的白色轻质立面明快连续地跨过间隔空间,以纹理与周边社区形成强烈又和谐的对比。雕塑手法令阳台跳出乏味的整齐排列,仅用暗色水平阴影就完成了整体质感的表达。
这种低成本但个性鲜明的现代设计风格,替代了整齐划一、随处可见的“标准欧陆风格社区”,协助业主用合理预算造出更有吸引力的生活场所,成为长治新CBD区域的关键节点。Y-Loft City为Y世代青年客户展现了本地现代社区生活的新可能,以高出周边60%的定价成功发售。
Y-Loft City:旧城,新生活
你会如何想象一种北上广深之外的现代社区生活?不再批量复制随处可见的“欧式”公寓楼群,一线城市之外能否诞生自己的新建筑定义?
在山西省长治市,这个曾有过繁荣重工业历史的小城,叠术建筑用 80后住宅项目Y-Loft City做了次大胆尝试。
Y-Loft City位于长治市的新CBD区域,这里有深厚的工业社区历史。过去,人们在此共享着同一种对现代化的期望与工业文化传统。当工业文化变为工业遗产,原本的坐标系随之消失,长治被以地价、商业等元素重新定位为三线、四线城市,人们只能以一线城市为模板想象理想生活。
对叠术而言,Y-Loft City项目是挑战。如何为这个融合着不同历史元素的区域重新展现一种共同生活——既根植于自己的本土文化体验,又能够汇聚社区的力量持续更新。
叠术在宏观与微观的空间层面精巧地组合出对这个挑战的回应。
Y-Loft City所在的空间,如果与数十年前轴承厂时代的空间时空重叠,将会呈现出一种意外的共同特征:多种城市和社区功能,在同一个有机体内组合。轴承厂所属的厂房、住宅区、医院、学校曾经连为一体。Y-Loft City区域也与基于旧厂区建造的博览中心、文创园建筑等公共空间遥遥呼应。
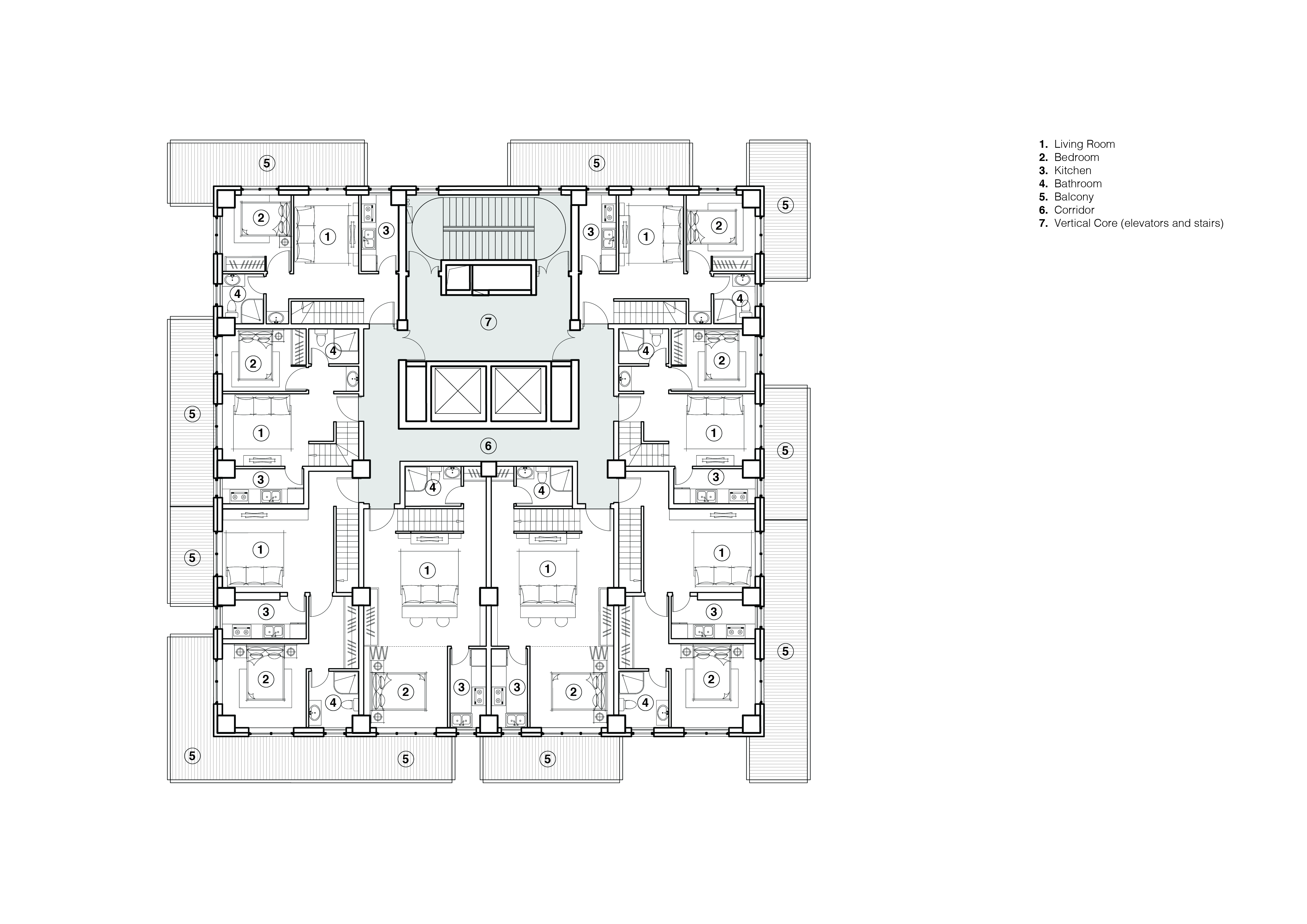
在更小的尺度上,Y-Loft City再次重新组合了公共空间与住宅空间。与周边那些早期建成的住宅社区相比,最直接的差别是“围墙+大门”的消失。开放的公共空间包含斜向交错的通道与地面、下沉面双重活动区域。5万平方米的建筑面积通透呈现,让Y-Loft City不仅是周边区域处处视线可及的白色地标,也成为人们随时可到达的行动中心点。
叠术拒绝使用整齐划一的复制方式。三座公寓建筑高低不同,朝向各异,却彼此呼应,成为整体空间的三个构建支点。社区共同体与独立居住这两种氛围在由支点构成的区域内兼容并存。
这种空间结构,引导了人们从内、从外观看建筑的方式。
作为主体的Y-Loft City强有力地直接介入环境中,与大规模住宅社区单体建筑的存在感被整体所压制的常态截然不同。三座塔楼布局时的高度落差与旋转处理打破了单调的水平、垂直重复。明亮的白色轻质立面低成本但明快,连续地跨过楼外间隔,在三座建筑之间呈现出一贯的纹理,也与周边的早期社区色调形成了鲜明而不失和谐的对比效果。
与连续、一贯的整体风格感并存的,是每一个个体Loft单元同时得以凸显于观看者眼前。叠术用雕塑手法把阳台从乏味的整齐排列中拉出,将直角元素从外立面的平面扩展为每座公寓四面上的立体凹凸结构。这种变换中的构造强调着阳台所通往的个体居住想象。作为与白色主体的对比,暗色从每一层窗框、窗玻璃延伸到阳台的金属栏杆,呈现着强烈的存在感。
阳台的这种凸显设计并不只是出于形式的动机,它也塑造了一种真实的均质生活体验:不论是三座塔楼中的哪一座、哪一个房间,都能最大限度地拓展光照范围。叠术与开发方在使用规则上也有共识:阳台不会封闭,这种所有居住者共同享用的体验会一直持续。
业主期望用合理的预算造出真正的现代设计风格。叠术在Y-Loft City项目中使用简单而独特的强对比方法,替代掉泛滥的繁复装饰结构,降低了外立面所占用的造价成本。对于Y世代青年用户而言,这是更具有吸引力的生活场所,又不会由于堆砌装饰而让价格高不可攀。因此,Y-Loft City以高出周边社区60%的定价成功发售。
Y-Loft City既是叠术对开头问题的回答,又是新的提问——在无数急速发展中的中国小城,是否也能产生这一种以生活/社区形态而非价格、地段为核心吸引力的住宅项目?建筑师还能为新的社区形态演进做些什么?设计者与业主应怎样协作,珍惜利用既有的文化资源以创造新的社会生活?
这是未来我们必将继续探索的问题。
We use cookies to improve your experience. Choose which categories you want to allow. Essential cookies are required for the site to function.
Required for basic site functionality. Always on.
Anonymous usage and performance measurement.
Personalisation and third-party embeds (e.g., maps, video).