BACA

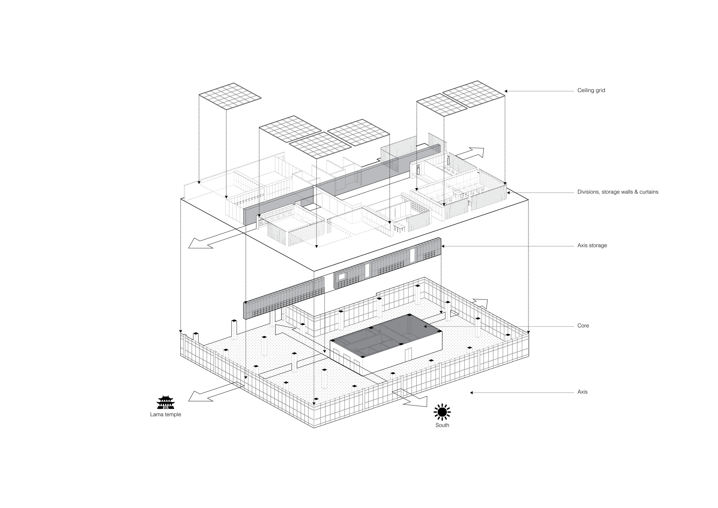
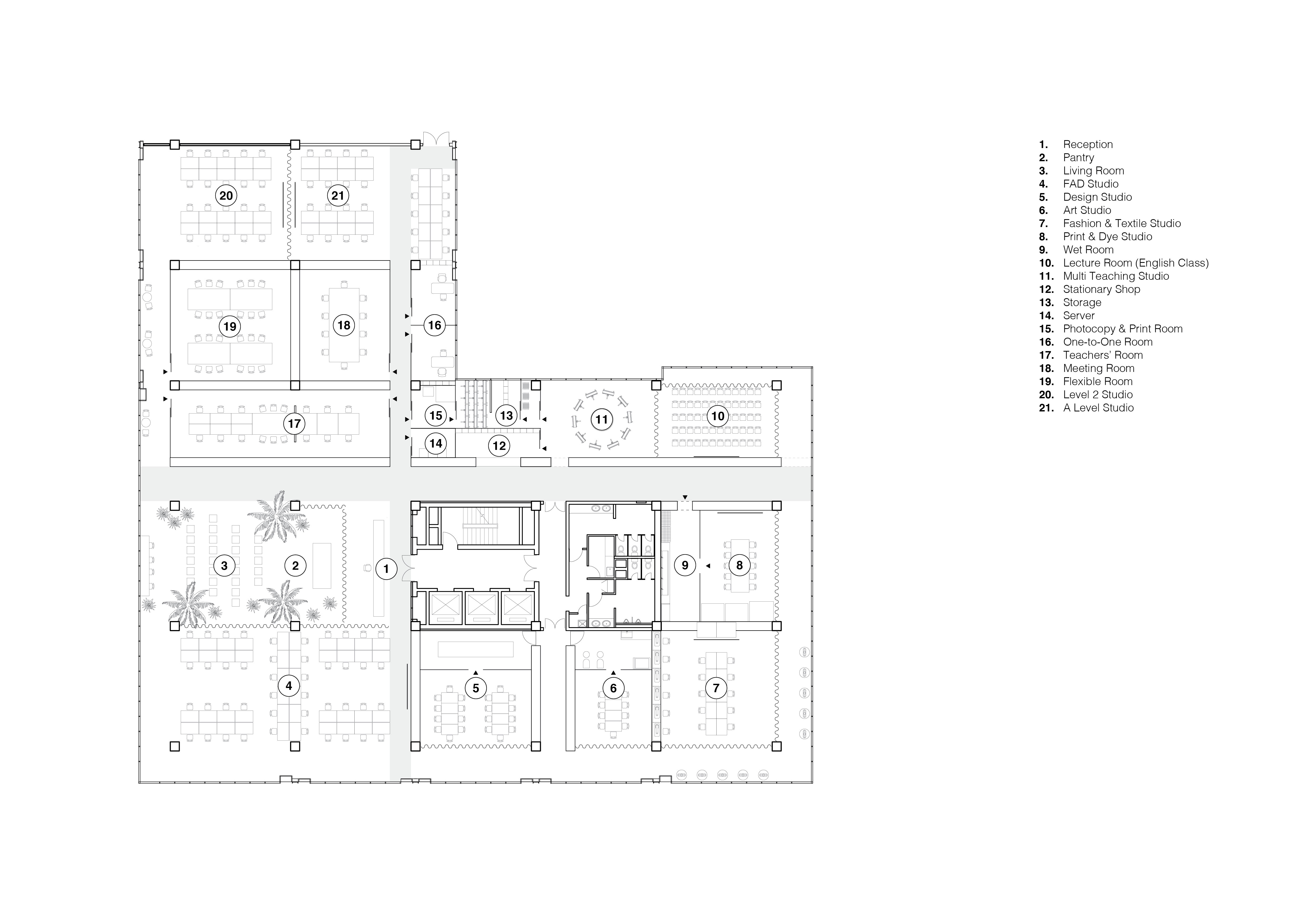
When designing the new extension of the Beijing Academy of Creative Arts, Superimpose proposed to break with the conventional planning of educational institutes by using an innovative circulation concept that suits the client’s ambition of creating a vibrant and student-focused academy. The adaptable design takes into consideration how students interact, how they browse and seek for inspiration.
Superimpose proposed to place the typical dark corridor at the façade and theme it as the 'Promenade of Arts'. This circulation type invites students to look outside of their own studio, and get inspired by other people and art disciplines. The ‘Promenade of Arts’ will also be used for (spontaneous) exhibitions, catwalk-shows, and cross-disciplinary workshops.
By placing the corridor at the façade, more daylight will enter the building. At the same time, it reduces the impact of direct sunlight to the studios during Beijing’s warm summer months. The studio rooms can be isolated from the ‘promenade’ for private classes by large curtains that substantially help to reduce noise interference. Program that might cause sound disturbance or toxic smells will be located in enclosed boxes.
Due to financial reasons, Superimpose was only involved in the concept design stage of this project. This meant that already in this early stage of the project, smart cost-cutting strategies had to be integrated to guarantee a good outcome. The strong circulation concept contributed a lot to the eventual appearance. Light fixtures, furniture and equipment were recycled from other (art) schools.

When designing the new extension of the Beijing Academy of Creative Arts, Superimpose proposed to break with the conventional planning of educational institutes by using an innovative circulation concept that suits the client’s ambition of creating a vibrant and student-focused academy. The adaptable design takes into consideration how students interact, how they browse and seek for inspiration.

























01/25
We use cookies to improve your experience. Choose which categories you want to allow. Essential cookies are required for the site to function.
Required for basic site functionality. Always on.
Anonymous usage and performance measurement.
Personalisation and third-party embeds (e.g., maps, video).