Re-Veil Interior

‘Superimpose designs the ‘Re-veil’ and saves industrial heritage from demolition.’
Superimpose designed an exhibition center for Changzhi, a third tier city in Shanxi Province of China. Under the prevailing economic and urban transformation in China, Changzhi faces suburbanization, which is effecting into a new CBD. The main design challenge for Superimpose was to either erase the current city fabric or try to preserve the province’s fewest remaining industrial heritage.
Superimpose was appointed to take part in the CBD design. The future CBD is planned on a site, which has more than 15 former bearing factories built in 1945 for the Liberation War. The 70 years old heritage embodies a significant historical and cultural value. In 2011, the client successfully acquired the land through auction.
Facing economic pressure the client and authorities planned a completely new urban development, ignoring the actual added value of the heritage. Superimpose strongly believes city growth can be carried out in the form of preservation and regeneration.
In order to convince client and government to preserve instead of demolish, Superimpose referenced to successful local and international regeneration examples, such as 798 Beijing Art District and 1933 Shanghai Slaughter House. Cultural heritage as added value to the surrounding developments, owned by the same client, generated vision alignment with the client’s marketing team. Eventually Superimpose successfully convinced both authorities and client to preserve and revitalize at least 70% of heritage into a “Cultural Hub”.
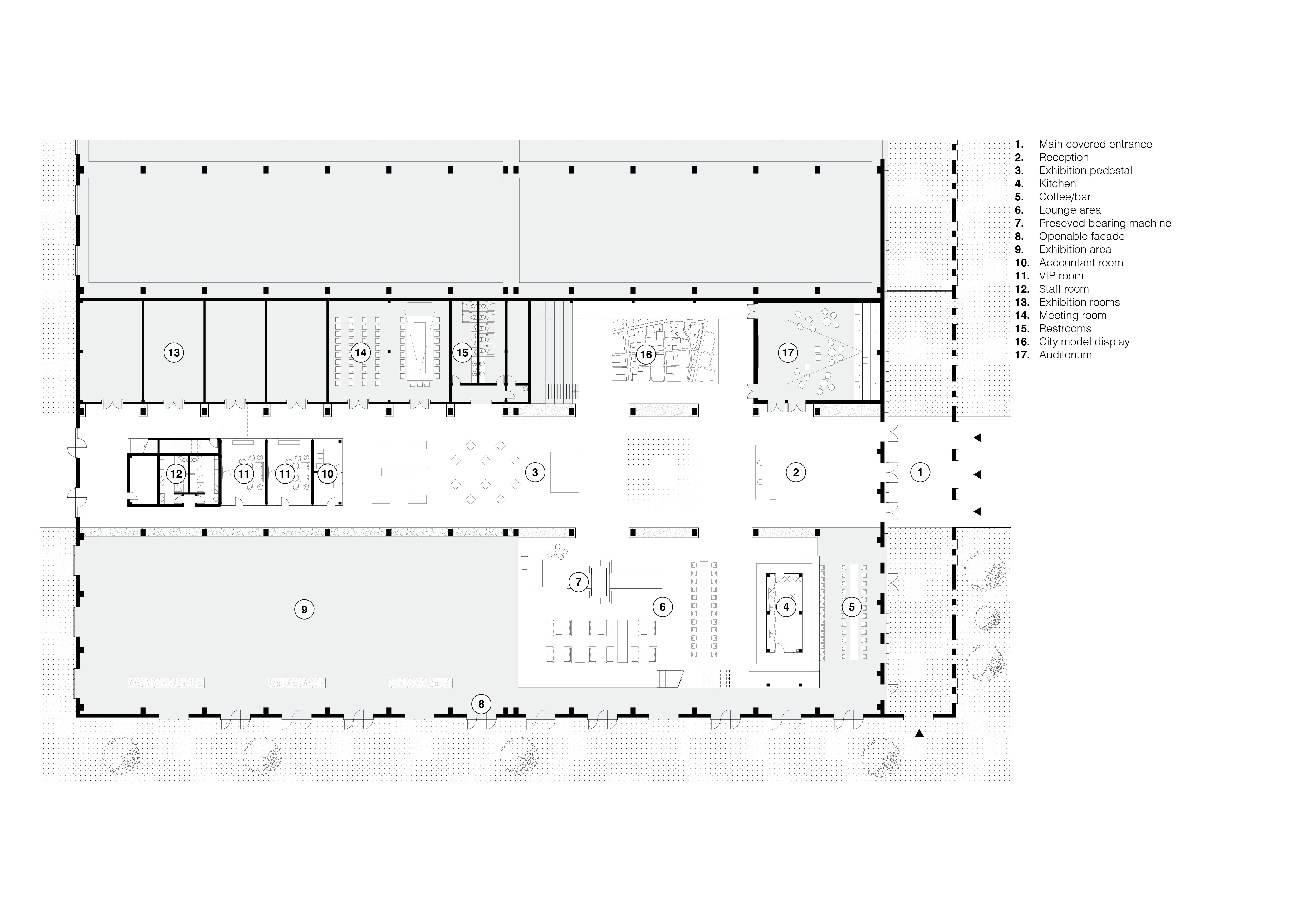
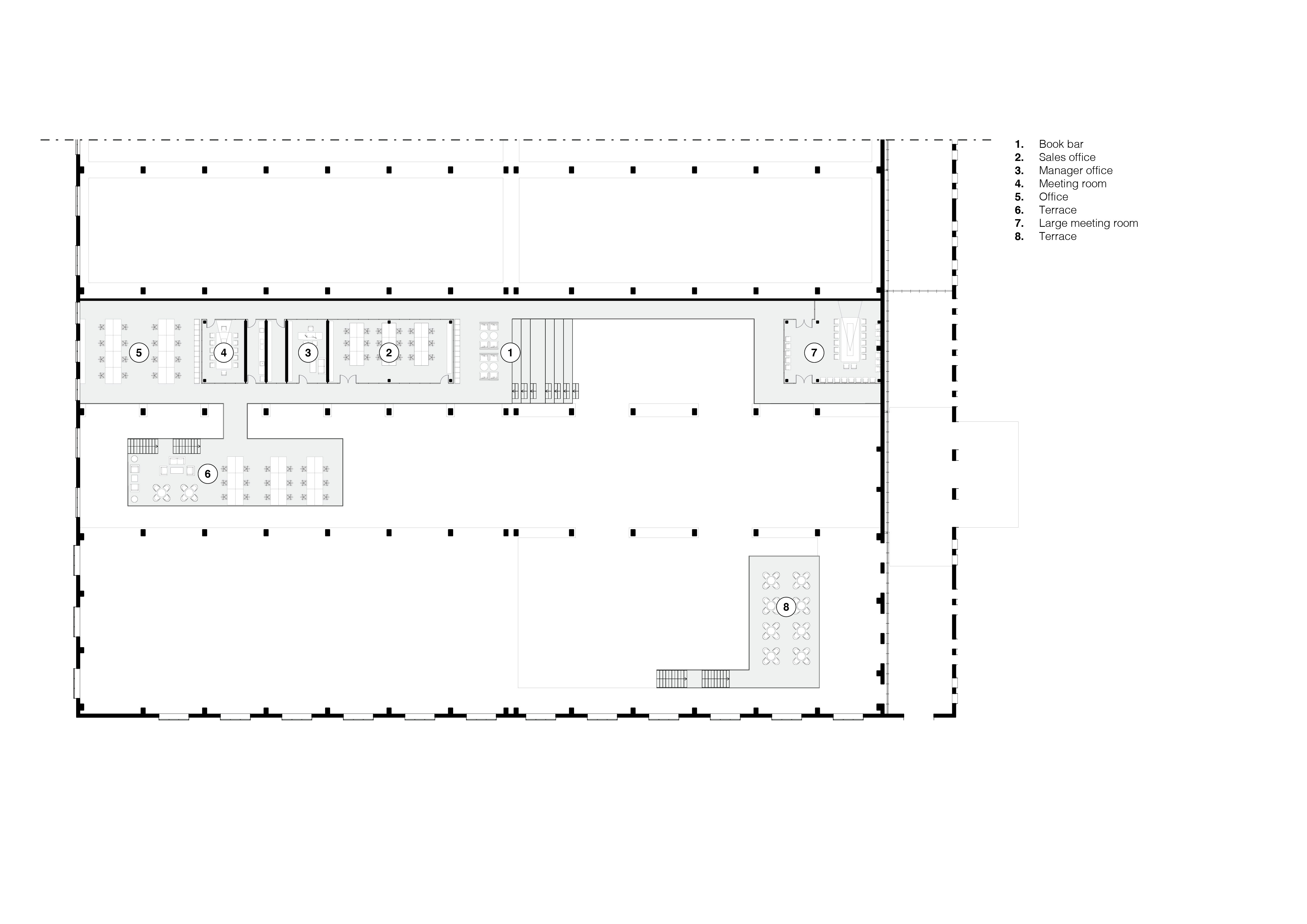
As part of this ‘cultural hub’, Superimpose regenerated the first and the largest of the former factories into the ‘Changzhi City Expo’, which will host as an exhibition center, a government-meeting center, office spaces and an auditorium. Superimpose’s main design strategy for the ‘City Expo’ was to investigate the original distinctive elements of the factory and insert minimum architectural interventions to restore the spatial quality and simultaneously provide the required programmatic functionality of the exhibition.
Key features of the factory are the repetitive structural frames, the unique and wall-painted propaganda slogans, and rhythmic façade openings. The original brick façade is robust, rhythmic and designed for industrial purposes. To adapt and accommodate the current needs, a level of intervention is introduced to the facade.

‘Superimpose designs the ‘Re-veil’ and saves industrial heritage from demolition.’
















01/25
We use cookies to improve your experience. Choose which categories you want to allow. Essential cookies are required for the site to function.
Required for basic site functionality. Always on.
Anonymous usage and performance measurement.
Personalisation and third-party embeds (e.g., maps, video).