SOHO 3Q

Superimpose transforms shopping mall into Chengdu inspired reconfigurable SOHO 3Q.
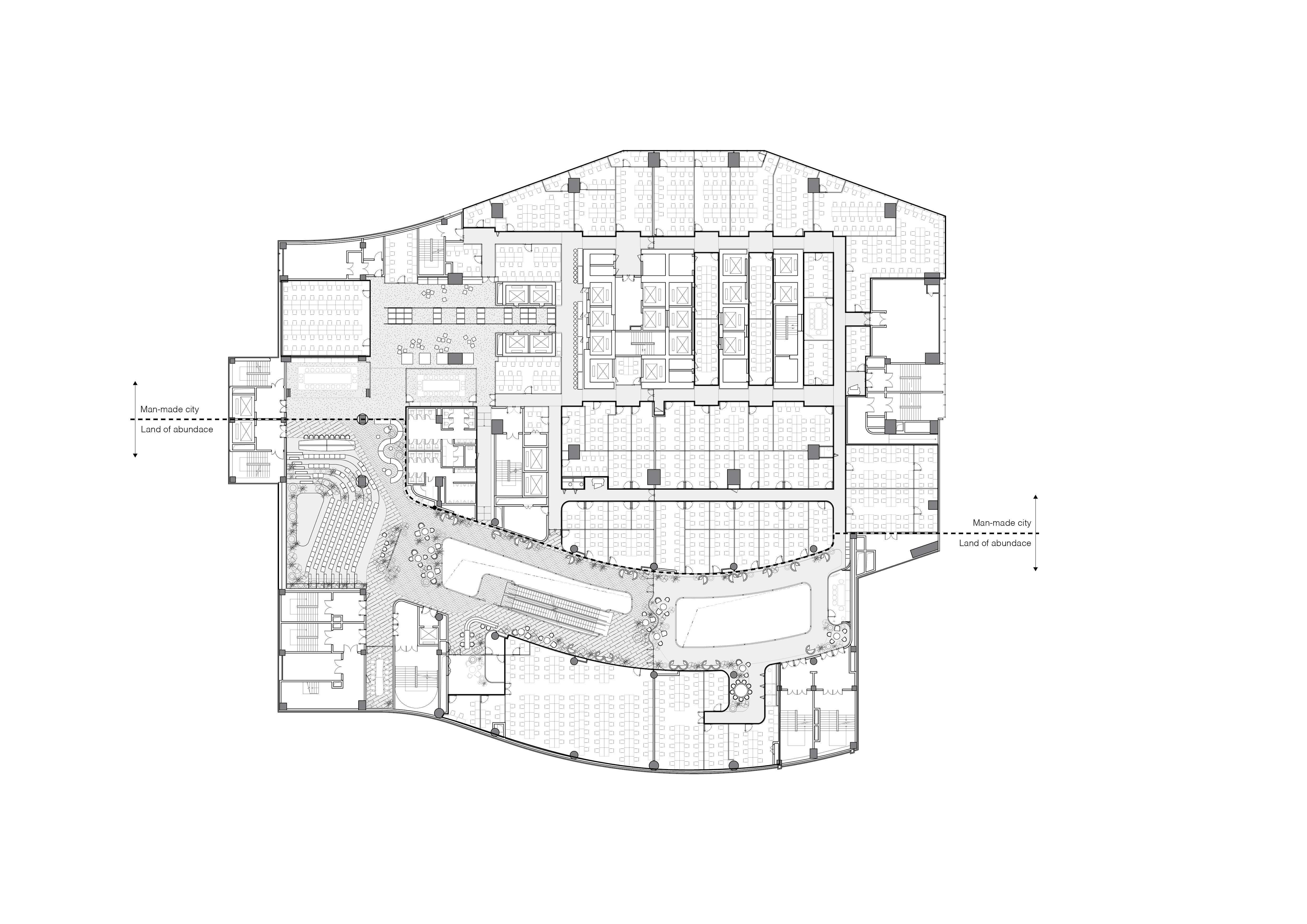
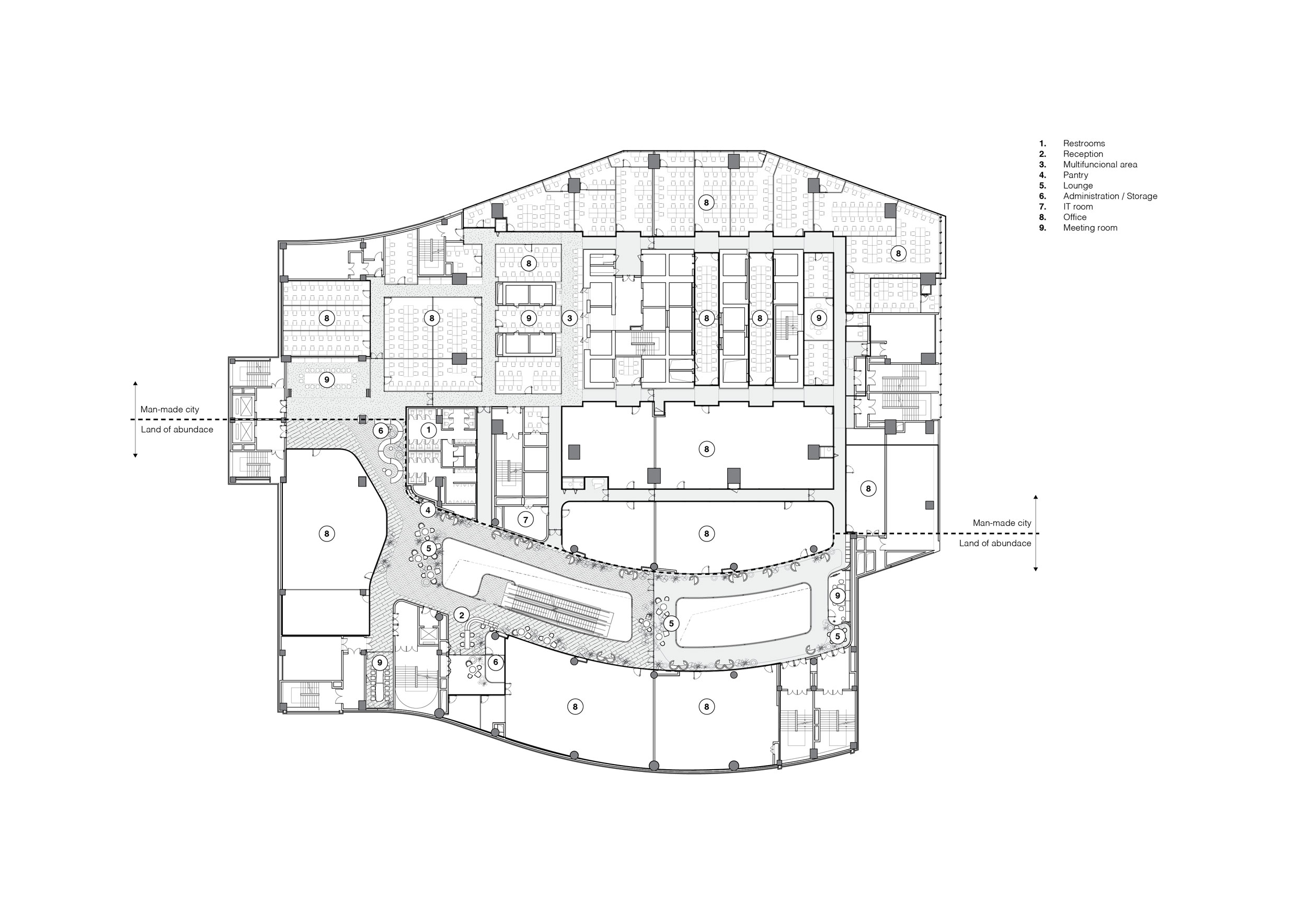
Superimpose transformed the 3rd and 4th floor of the 12,000 square meter, low occupancy but centrally located WIFC shopping mall into a large vibrant and creative platform for SOHO 3Q, China’s leading co-working office space developer.
The existing mall consists of two distinct zones: the curved and ‘fluid’ atrium zone, which connects to the other mall floors with the atrium void, and the more orthogonal shaped area situated underneath the high-rise office tower. Superimpose interpreted the two zones as separate worlds and themed them according to the two distinct characteristics of Chengdu: the ‘Land of Abundance’ and the ‘Man Made City’.
The ‘Land of Abundance’ zone is designed as a lush green space with natural materials, such as wooden furnishing, stone flooring and wooden wall lattices. The color palette has different tones of green, yellow and grey. The main space is a large and flexible forum area inspired by the Sichuan plains. The plan setting out of this zone embraces fluent and curved lines, filleted corners and ‘soft’ furniture pieces. Plants and bamboo are placed in strategic places to provide a green backdrop to the working areas.
The ‘Man Made City’ area, dominated by large tower cores punching through, is designed by using orthogonal geometries and industrial materials such as cement board, aluminum and concrete. The color palette consists of tones of grey, blue and salmon pink.
Large movable meeting pods are placed in the public space to ensure maximum flexibility in use. Superimpose collaborated with Belgium photographer Kris Provoost, and developed a tracing technique to translate his ‘Beautified China’ series into full-height huge wall murals to enhance the ‘Man made city’ concept.

Superimpose transforms shopping mall into Chengdu inspired reconfigurable SOHO 3Q.






















01/25
We use cookies to improve your experience. Choose which categories you want to allow. Essential cookies are required for the site to function.
Required for basic site functionality. Always on.
Anonymous usage and performance measurement.
Personalisation and third-party embeds (e.g., maps, video).