The Play-round

During the design stage of a kindergarten, Superimpose initiated workshops with the client and local government to provide a solution to strict conventions and regulations for kindergartens to provide a safe environment for kids that doesn’t ‘overprotect’ but stimulates them to explore, play, stimulate their senses and to be active outdoors. The kindergarten was designed as part of Superimpose’s masterplan for a new residential area in the Chinese 4th tier city Changzhi.
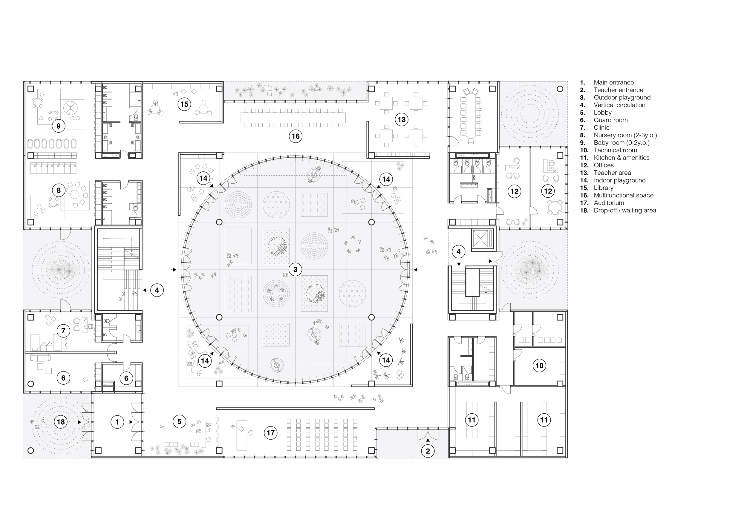
For the very dense project site Superimpose suggested a rigid and efficient box with a rational column grid, carved out by a large circular courtyard. The heart of the project - which gives the project its name the ‘Play-round’ - is visible from nearly all spaces, brings in a lot of daylight and provides a central area for all kids to play together. The courtyard can be accessed by one of the many doors in the glass-façade at the perimeter of the circle. It invites the kids to enter a courtyard with a multitude of play spaces, play-furniture and allotments for kids to grow their own vegetables.
The large entrance lobby of the Kindergarten offers views towards the central courtyard. The supporting functions such as the multifunctional auditorium, teacher rooms, nurse rooms, the kitchen, reading ‘pockets’ and a small library are also located on ground floor.
Two vertical circulation cores with integrated bamboo invite the children to walk up to the eight classrooms on the second floor. Private outdoor play gardens of 60 square meters for each classroom break down the rigid massing even further. The classrooms are split into a multifunction classroom and dormitory by the washroom. Each classroom has a circular roof-light and floor-to-ceiling glass to increase daylight.
Superimpose hopes this kindergarten will set a benchmark for future educational developments in similar cities, showcasing that daylight, outside play-space, and interaction with nature are key elements in early age development.

During the design stage of a kindergarten, Superimpose initiated workshops with the client and local government to provide a solution to strict conventions and regulations for kindergartens to provide a safe environment for kids that doesn’t ‘overprotect’ but stimulates them to explore, play, stimulate their senses and to be active outdoors. The kindergarten was designed as part of Superimpose’s masterplan for a new residential area in the Chinese 4th tier city Changzhi.







01/25
We use cookies to improve your experience. Choose which categories you want to allow. Essential cookies are required for the site to function.
Required for basic site functionality. Always on.
Anonymous usage and performance measurement.
Personalisation and third-party embeds (e.g., maps, video).